© 2025 Granite State ADU. These plans are copyrighted
The Granite State
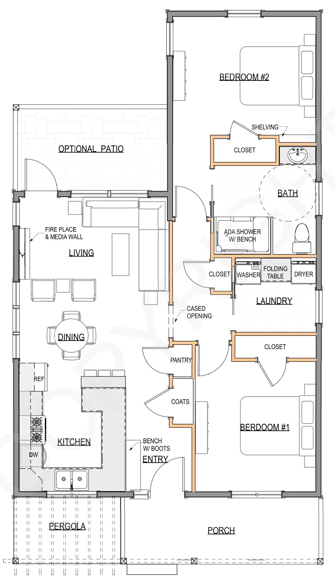
950 SQ FT
Private wing with 2 Bedrooms - both will fit a King size bed
Ada compliant throughout
Single level, designed for aging-in place
1 full size bath, located privately
Full size Kitchen with standard size appliances
Dedicated Dining area
Full Laundry room
Optional porch, pergola or patio for outdoor living
As always, lets have fun & customize!
Ready to start?
The best place to start is by allowing us to check your property:
We will NOT spam you, EVER!

