© 2025 Granite State ADU. These plans are copyrighted
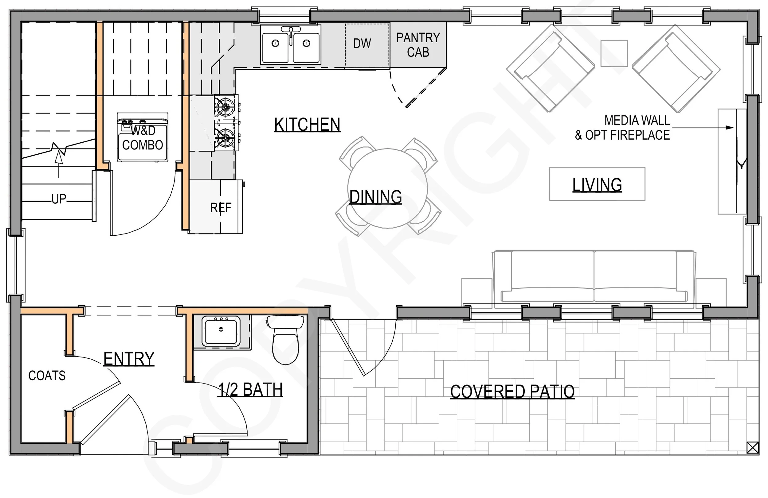
860 sq ft
Two-Story”
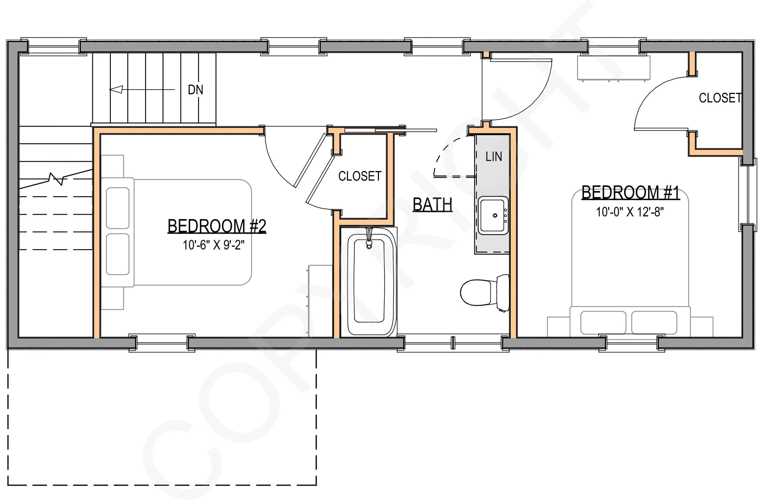
2 Bedrooms, both will fit Queen-size beds
1and a half Bathrooms
Full-size kitchen w/ standard appliances
Dedicated Dining area
Full height Pantry cabinet
Laundry closet
Covered Patio (can be omitted to further reduce cost)
Remember - this is just a starting point. We will fine tune the design to fit your taste, your site and your budget!
Little Alton Bay
First Floor Plan (530 sq ft)
Second Floor Plan (330 sq ft)

